高精度光学元器件及其超精密模具项目规划预方案批后公告

发布日期:2025-11-06 10:28 信息来源:金安区自然资源和规划局 浏览量:我要纠错 【字体:  

依据《中华人民共和国城乡规划法》和《关于城乡规划公开公示的规定》等相关规定,现将高精度光学元器件及其超精密模具项目规划预方案进行批后公告

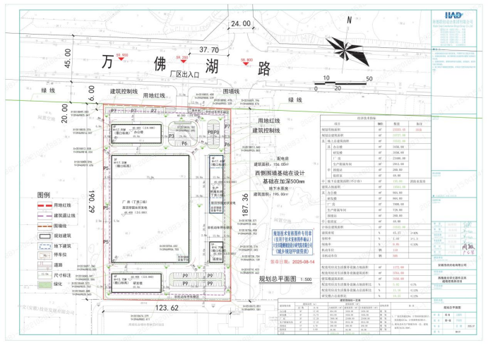
高精度光学元器件及其超精密模具项目,位于金开区万佛湖路以南、新阳大道以东该项目总用地面积为23333.45㎡;总建筑面积33727.00㎡;计容总建筑面积33532.00㎡;容积率1.44;建筑密度45.27%;绿地率9.80%

总平面图

效果图

 

标签:
关联信息